【簡単施工】隠し扉をもっと身近に!スライド丁番で作る造作アイデア
#マーフィードア
「隠し部屋をつくりたいけど、コストや施工が難しい…」そんな悩みを、スライド丁番の“逆付け”という応用アイデアで解決できます。
このページでは、住宅設計や造作家具にも取り入れしやすい隠し扉の造り方と、すぐに設計に反映できる参考図面をご紹介します。
スライド丁番を“逆付け”すれば、隠し扉が造作できます
通常はスライド丁番のカップを扉に掘り込みますが、側板に掘り込むことで、内側に開く扉を造作することができます。
この方法は通常仕様の応用例ですが、参考図面をもとに安全に施工できます。

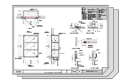
通常 側
板 
逆付 側
板 
開き戸のため、上下にレールなどがなく開けた時スッキリ綺麗な印象です。
設計データを今すぐダウンロード
隠し扉をスライド丁番で造作できる
納入参考図面を配信中
スガツネのスライド丁番なら取付個数が少なく省施工で実現
重量用スライド丁番J95であれば、扉幅1200mm扉高さ2400mm質量40kgの扉を3個の丁番で吊ることができます。
通常のスライド丁番だと取り付けに5~7個は必要になりますが、J95であれば取付個数が少なくて済むため、簡単に隠し扉を造ることができます。
また、取り付けはワンタッチで省施工です。
J95は3個吊が可能

※上下丁番は扉端部から200mm以内に取り付け、取付ピッチは等間隔としてください。
※中帆立に取り付ける場合は、固定された、強度のある板に取り付けてください。
扉スペック

安全性を高めるドアダンパーの併用
指挟みのリスクが構造上生じますが、LDD-Sドアダンパーを併用してソフトクローズ機能を付加することで安全性を高めることができます。

面付で簡単に施工できるLDD-S型がおすすめです
扉の軌跡(J95-C24-0T使用の場合)

※1 本図は扉厚18mm、扉幅1200mm仕様です。
※2 扉が側板と干渉する場合は別途戸当りを設けてください。
※3 側板の厚みは25mmを超える場合、C面取りが必要です。右図をご覧ください。
※4 側板の厚みが25mmより厚くなる場合は扉の干渉を避けるためにC2以上を設けるようにしてください。
仕上がりを美しく 扉の位置調整も可能
前後、左右、上下と3次元方向に取付後でも扉の位置を微調整が可能です。J95を通常使用する場合と調整方法・調整量が異なり以下の調整量となります。

| 前後調整 | +3.0/−1.0(mm) |
|---|---|
| 上下調整 | ±3.0(mm) |
| 左右調整 | ±2.0(mm) |
使用製品の特長
重量用ワンタッチスライド丁番 J95 インセット仕様
- 3ヶ使いで最大40kgの扉を隠し扉として吊ることができます。
- 扉の脱着はワンタッチ、位置調整もできて簡単施工。
- LDDドアダンパーを組み合わせることで、より理想的な開閉動作を実現できます。
※2025年12月25日時点の内容です。
ラプコンドアダンパー LDD-S型 面付用
- 既存のドアに後付けが可能な、屋内開き戸用ドアダンパーです。
- 取付位置のあわせが簡単で、施工性に優れています。
- ドアクローザーと比べ、ドアを軽く開けられます。
※2025年12月25日時点の内容です。
仕上がりを整えるオプションカバー

本体カバー 95SC-0型
カップカバー J95CC型
座金カバー J95ZC型
※2025年12月25日時点の内容です。
他にも扉のアイデア、いろいろあります。
スライド丁番以外の隠し扉
まるで忍者屋敷のような「仕掛け扉」を実現できる製品はスライド丁番以外にも豊富に揃えています。

設計の幅を広げるユニークな扉シリーズ
隠し扉以外にもスガツネではキッチン周りで使えるユニークな開き方の扉を揃えています。
建具扉だけではなく、家具用扉も豊富です。他の開き方もあわせてご覧ください。








